![]() <
>
|
550 SERIES RELIEF VALVEupdate锛2014-07-07Browse锛 |
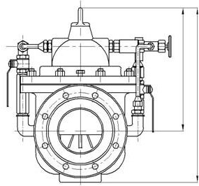
Decompression valves is composed by
the main valve, needle valve, pilot valve, ball valve and piezometer, etc.
Decompression valves is controled by polit valve and automatically drived by the pressure difference of the Upstream and downstream of pipline.
Valve is used for pressure relief for circulating system of high-rise structures, avoiding system danger due to excessively high hydraulic pressure.
It maintains upstream water pressure at preset pressure and ensure water supply.
Technical Specification/鎶鏈鏍
- Size/瑙勬牸锛欴N20-DN800
- Diaphragm type/闅旇啘寮忥細DN20-DN500锛
- Piston type/娲诲寮忥細DN600-DN800
- End/杩炴帴娉曞叞锛欼SO PN6/10/16
- Work Pressure/宸ヤ綔鍘嬪姏锛歅N10/PN16
- Work Temperature/宸ヤ綔娓╁害锛0鈩冿綖80鈩
Structure Character/缁撴瀯鐗圭偣
- Full Bore Design, low fluid resistance and large flow.
- Easy to adjust and reset, Large operating range.
Main Components and Materials/涓昏闆朵欢鍜屾潗璐

Dimensions/灏哄
















